’’ ()
€ 1750 (All-in, excl. VAT)
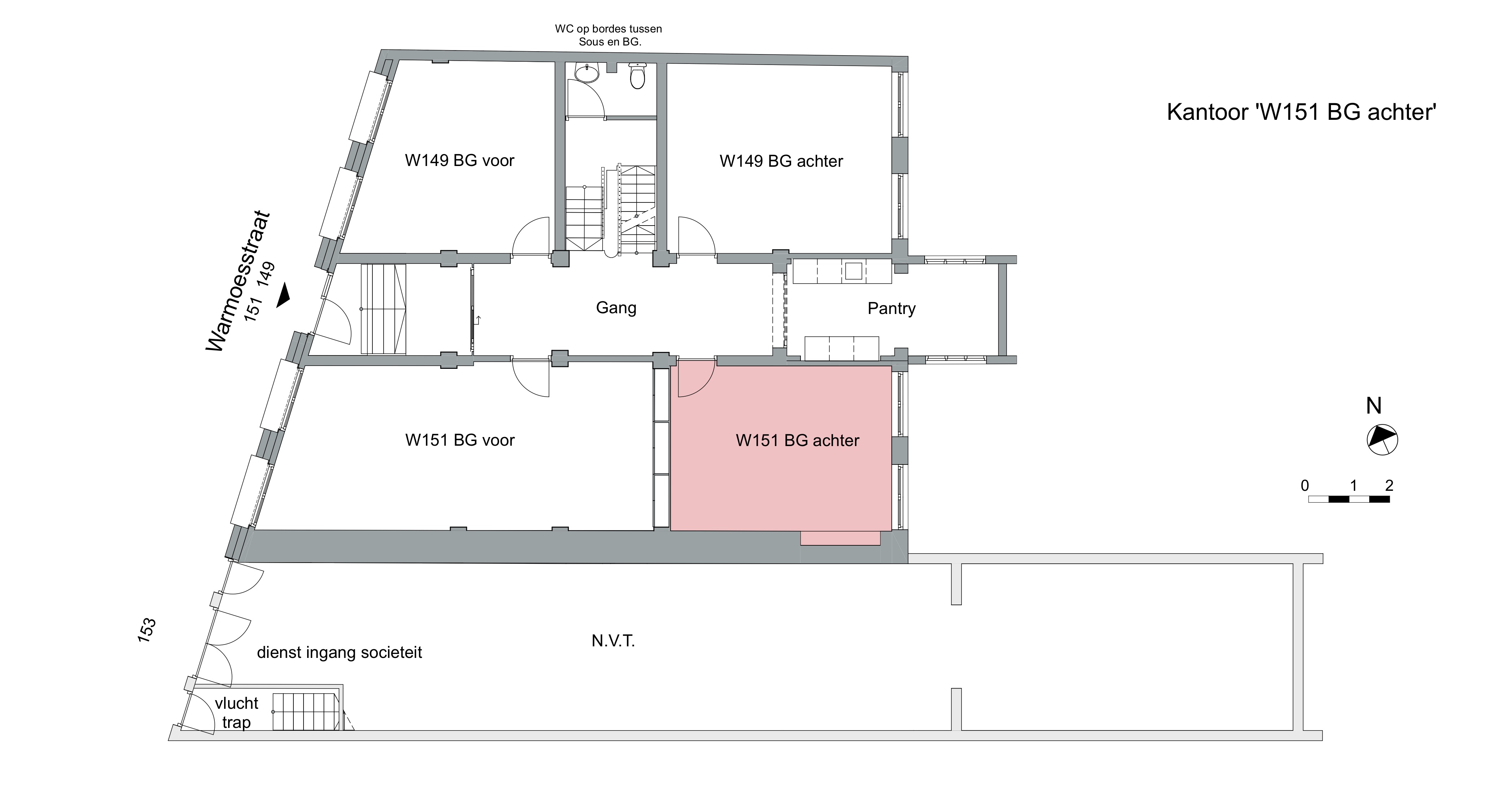
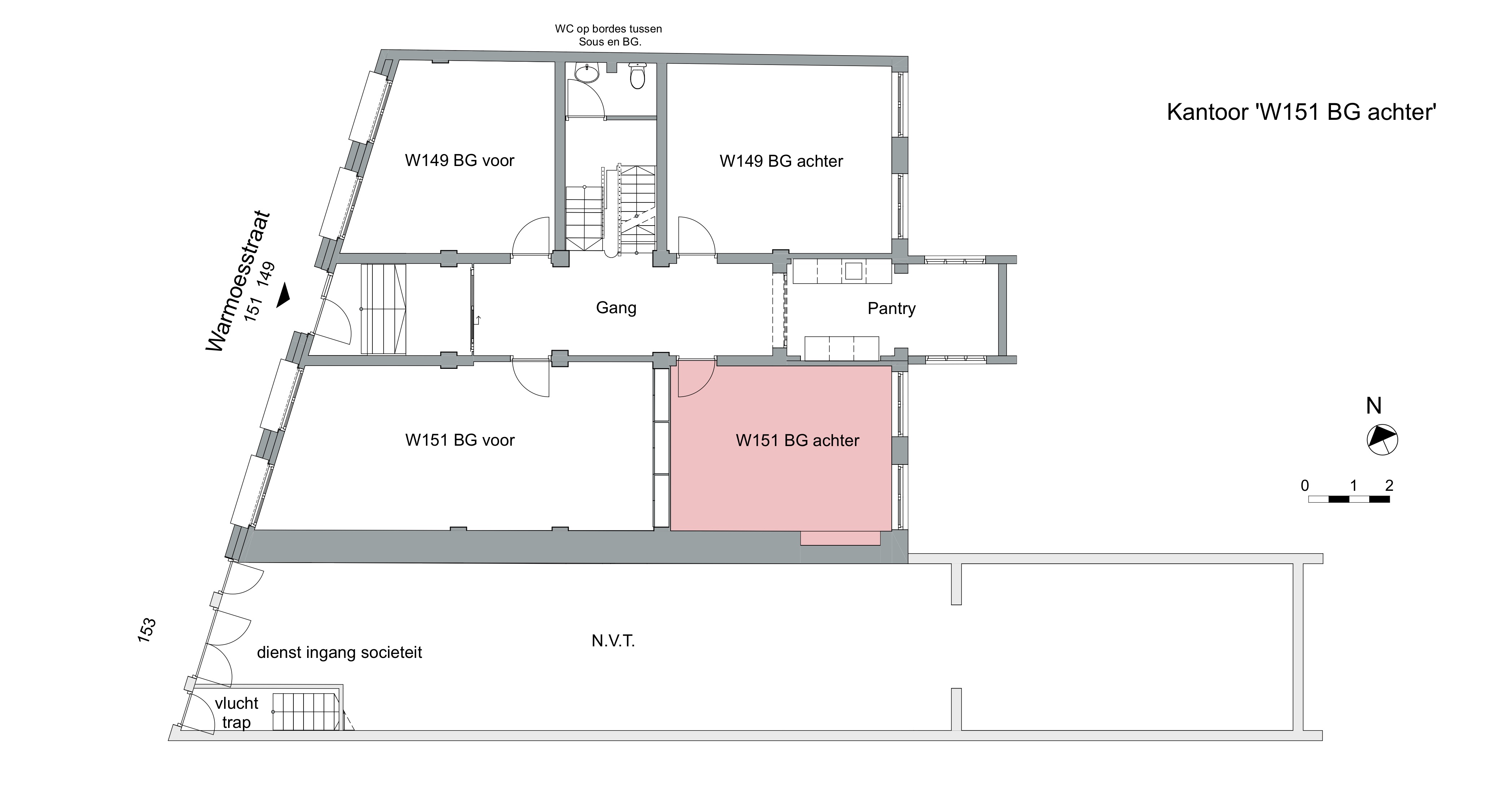
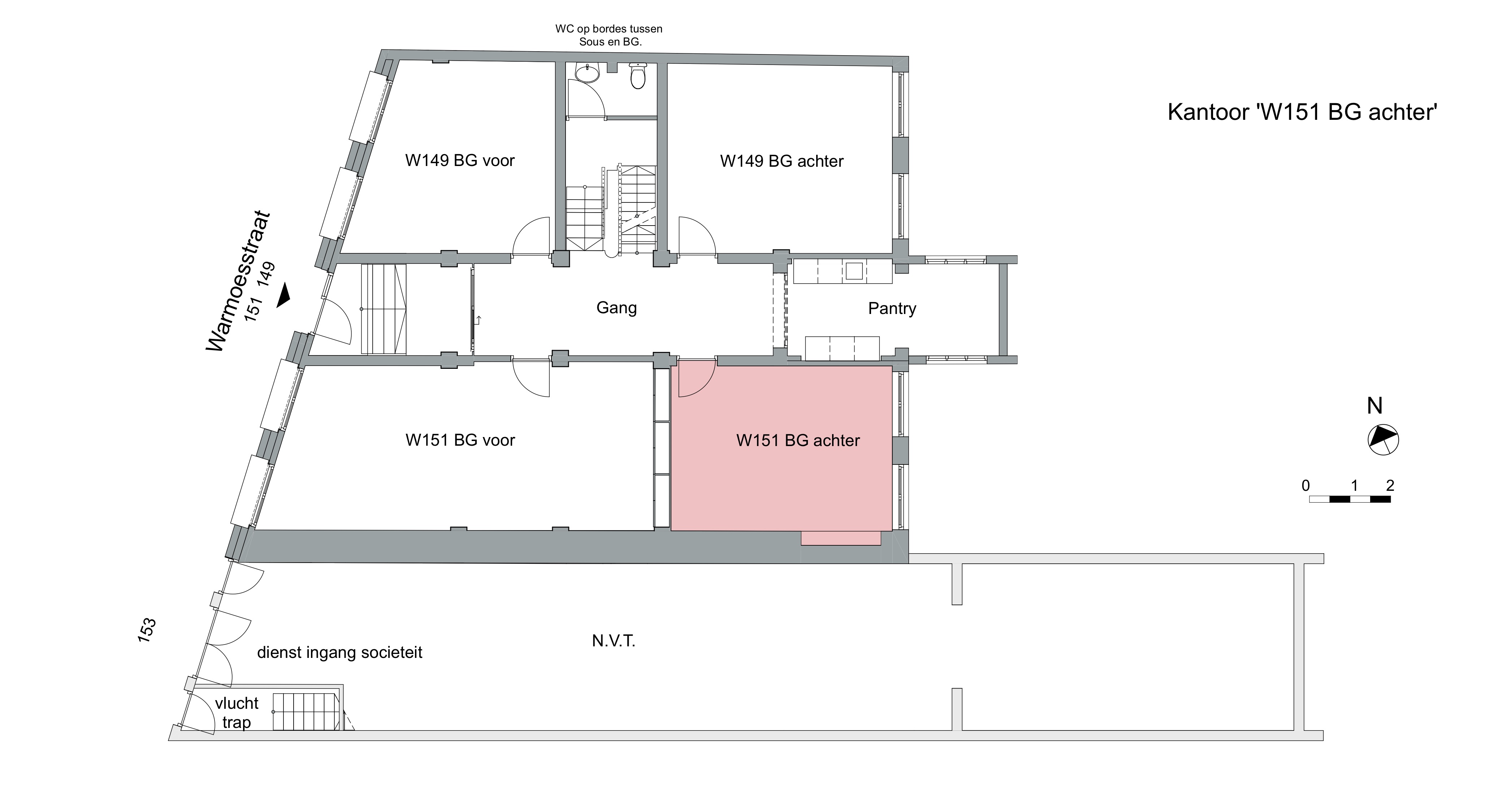
FACTS & FIGURES
- Net/gross area: 20 ㎡ / 26 ㎡
- Rental price: € 1750 excl. VAT & (€175p/month service costs)
- Available per: 2026-05-26 (YY/MM/ DD )
- Deposit excl. VAT: €5250
- Notice & renewal period:1 Full calendar quarter
FACILITIES
- In the service costs are included: heating, electricity, water, internet, meeting room, small maintenance, keys, municipal taxes
- System management: by SCC Business Systems B.V.
- Furniture (optional):
standard table (150x75 cm) € 5,- per month excl. VAT; black office chair € 10, - per month excl. VAT
- Free usage of meeting room:
- Internet: .
- Pantry with dishwasher and refrigerator:
- Toilets:
- Cleaning:
Contact us
